Virtual Tour
Photos
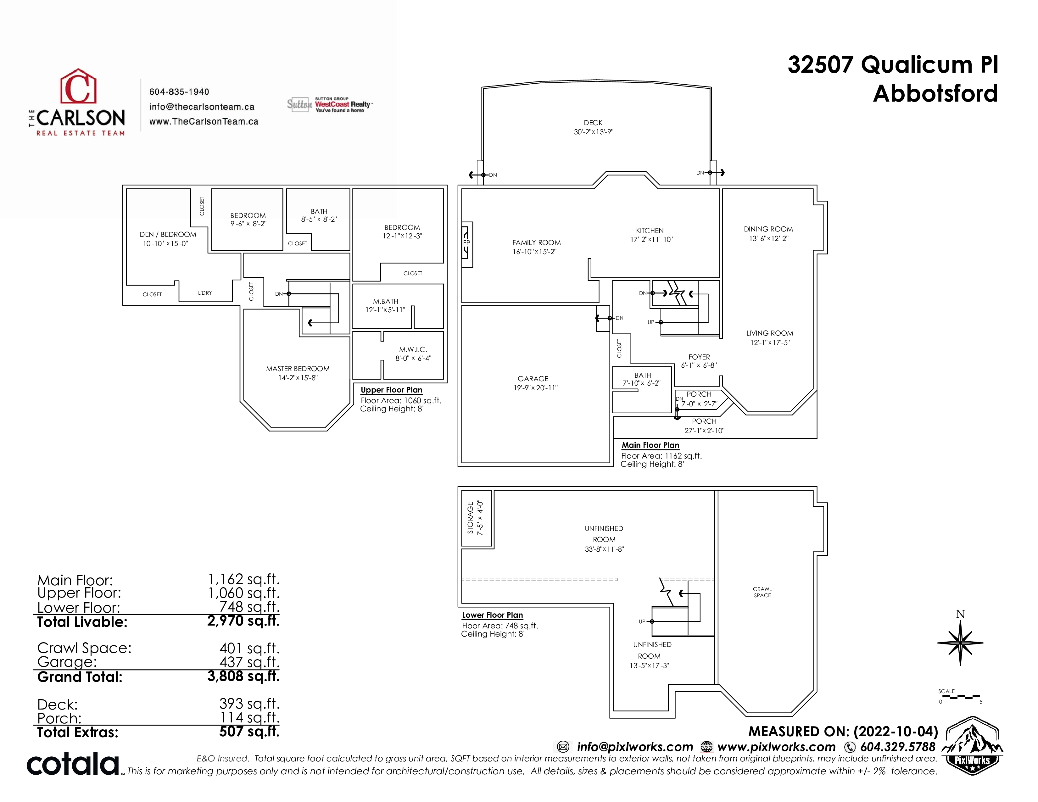
Floorplan
604-835-1940
604-835-1940
sold@joshcarlson.ca
www.JoshCarlson.ca
604-835-1940
sold@joshcarlson.ca
www.JoshCarlson.ca
32507 Qualicum Place, Abbotsford
604-835-1940
sold@joshcarlson.ca
www.JoshCarlson.ca
Virtual Tour
ERROR:
Javascript not activated
FRONT EXTERIOR
KITCHEN
LIVING / DINING ROOM
BACKYARD
Photos
View More
Floorplan